Menu

New luxury villas for sale in Lefkakia, Argolis

€460,000

MG873
Villa
214
2
4

Description

Newly Built Detached House in Lefkakia, Nafplio

Just minutes from the cosmopolitan town of Nafplio, in the peaceful and rapidly developing area of Lefkakia, this impressive three-level detached house of 214 sqm is offered for sale. The property sits on a private 1,000 sqm plot, combining modern architecture, comfort, and unobstructed views.


Modern Design & Quality Construction

The house stands out for its contemporary architectural style, blending natural stone, cement, and glass to create a bright and elegant living environment. Large openings allow abundant natural light while enhancing the connection between indoor and outdoor spaces.


Property Layout

Basement – 78 sqm

  • Can be configured as closed parking

  • Ideal for storage spaces or multipurpose use, like a playroom or bedroom

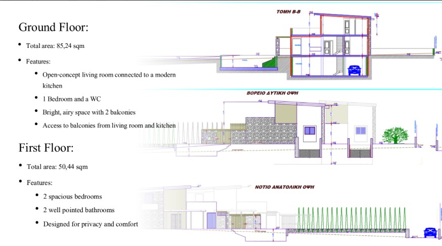
Main Floor – 85 sqm

  • Bright living room with energy-efficient fireplace

  • Dining area

  • Separate kitchen

  • One bedroom

  • One bathroom

  • Direct access to the landscaped garden

First Floor

  • Master bedroom with en-suite bathroom

  • Private terrace with open views

  • Second bedroom with balcony

  • Additional bathroom


Energy Efficiency & Modern Comfort

This newly built home includes:

  • Thermal insulation

  • Aluminum frames with double-glazed thermal break windows & insect screens

  • Autonomous heating & cooling per level (heat pump & fan coil system)

  • Solar water heater

  • Security (armored) door

  • Pre-installation for alarm and security cameras

The outdoor space will be landscaped, offering northeast orientation and open views. There is also the option to construct a swimming pool according to the buyer’s preference.


Prime Location Near Nafplio & Tolo

Lefkakia is a beautiful and emerging residential area offering privacy and tranquility while remaining close to all amenities.

Distances:

  • 1 km from the village center

  • 5 km from Nafplio

  • 5 km from Tolo and the nearest beach

Nafplio, one of Greece’s most charming and historic cities, offers a unique blend of culture, history, fine dining, and cosmopolitan lifestyle. Nearby Tolo is known for its sandy beaches, crystal-clear waters, and vibrant seaside atmosphere.


Ideal for Residence or Investment

This detached house in Lefkakia is an excellent opportunity for:

  • Permanent residence

  • Holiday home in the Peloponnese

  • Investment property near Nafplio

A perfect combination of modern construction, energy efficiency, privacy, and proximity to both the sea and the city.

← Back

Thank you for your response. ✨

Inquire about this property